Sanierung der Bereichsbibliothek für Erziehungswissenschaft und Psychologie (EWI-Bibliothek)

Blick in das Atrium mit den halbgeschossig versetzten Ebenen
Bestand
Durch die Auflösung der Pädagogischen Hochschule 1980 und die Verlagerung von Teilen der Lehrerausbildung an die FU wurde Anfang der 80iger Jahre die Errichtung der Bibliothek für Erziehungswissenschaft und Psychologie (1981-83) notwendig. Die Architekten Candilis, Josic und Schiedhelm prüften zunächst den Einbau in die Silberlaube, um dann ein eigenständiges Gebäude am Rande der Silberlaube zu entwickeln. Die Bibliothek ist, obwohl am Rudi-Dutschke-Weg liegend, nicht zu diesem, sondern zur Silberlaube hin ausgerichtet und wird über einen Übergang von der L-Straße der Silberlaube erschlossen. An einem großzügigen Lichthof liegen sieben halbgeschossig versetzte Ebenen, die einen Buchbestand von ca. 450.000 Bänden aufnehmen und 260 Leseplätze bieten. Das verglaste Atrium dient neben der Belichtung auch der Orientierung im Gebäude. In der äußeren Gestaltung nimmt die Bibliothek die Maßordnung und das Fassadenmaterial der Silberlaube auf, setzt mit den zwei zusätzlichen Materialien Holz für die Fenster und Betonwerkstein für die Brüstungen sowie der höheren Geschossigkeit und der Form des Atriums jedoch einen eigenen Akzent.
Ausgangssituation
An der Nordostseite der Erziehungswissenschaftlichen Bibliothek wurde von 2012 bis Sommer 2015 der Bibliotheksneubau für die Kleinen Fächer (ZKF) und die Naturwissenschaftliche Bibliothek (Architekt: Florian Nagler Architekten München) als Erweiterungsbau errichtet, um Synergieeffekte zwischen den drei Bibliotheken nutzen zu können (u.a. Mitnutzung der vorhandenen Mitarbeiterbüros im Altbau). Zwischen EWI-Bibliothek und Neubau wurde ein neuer Zugang für die neue Campusbibliothek hergestellt, in dem sich die gemeinsame Ausleihtheke mit Information, Beratungsplätzen, Selbstverbuchungsgeräten, Schließfächern und Kopierbereich befindet. Der neue Zugang wird von der L-Straße der Silberlaube erschlossen, zusätzlich entstand ein (Nacht-)Zugang von außen vom Rudi-Dutschke-Weg.
Anlass und Ziel der Sanierung
Der Sanierungsbedarf der EWI-Bibliothek ergab sich zum einen aus der teilweise defekten Fußbodenheizung sowie weiteren technisch und hochbaulich erforderlichen Sanierungen, zum anderen aus der notwendigen Anpassung an die durch den Anbau des ZKF veränderte innere Organisation der EWI-Bibliothek.
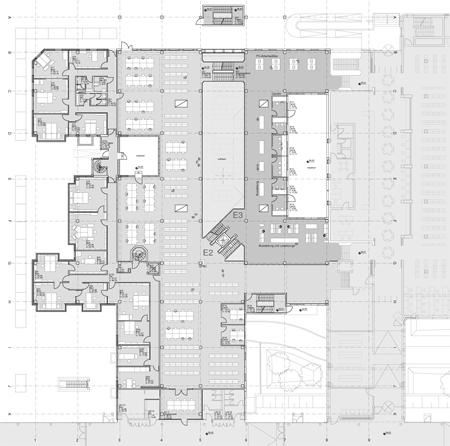
Grundriss der Ebene 2 und der neuen Eingangsebene 3 (rechts) mit Anschluss an
den neuen Eingangsbereich
Planung
Die an den neuen Eingangsbereich der Gesamtbibliothek anschließende Ebene 3 der EWI-Bibliothek wurde als neue Eingangsebene für dieses Gebäude definiert, und die Wegeachsen des ZKF hier fortgeführt. Auf dieser Ebene befinden sich nun ein Ausstellungsbereich mit Leselounge, die PC-Arbeitsplätze und 6 Carrels für jeweils zwei bis drei Personen. Weitere Carrels und Gruppenarbeitsräume entstanden auf den Ebenen 2 und 3 bis 6. Die ehemalige Eingangsebene 2 wird für Leseplätze und Regalflächen genutzt, die gemäß der Struktur des Gebäudes neu angeordnet wurden.
Die Bibliothek bietet nach der Sanierung Platz für ca. 270.000 Bände in Freihandaufstellung, 145.000 Bände im Magazinbereich, 250 Lese- und 50 Gruppenarbeitsplätze.
Der Brunnen und das Pflanzbecken wurden neu gestaltet und bilden gemeinsam mit einem Lesebereich das Zentrum des Atriums. Im Rahmen der Sanierung der Fußbodenheizung wurden im gesamten Bibliotheksbereich der Estrich und die Bodenbeläge erneuert. Die Oberlichtverglasung wurde energetisch verbessert und ein Sonnenschutz für das Glasdach eingebaut. Darüber hinaus wurden eine Reihe technischer Anlagen wie die Jalousieanlage, die RWA-Anlage, die Beleuchtung, die Elektronische Lautsprecheranlage etc. erneuert und das Gebäude brandschutztechnisch ertüchtigt.
Die vorhandene Regalanlage blieb erhalten, die übrige Möblierung wurde in Abstimmung mit dem ZKF erneuert. Bis auf wenige Ausnahmen erhielten alle Leseplätze Strom- und Datenanschlüsse sowie Einzelplatzleuchten. Höhenverstellbare Arbeitsplätze, Steharbeitsplätze und ein sehbehindertengerechter Arbeitsraum wurden ergänzt.
Der Verwaltungsbereich auf Ebene 2 blieb weitestgehend bestehen und erhielt eine Erweiterung im südwestlichen Bereich. Dadurch konnten die drei separat gelegenen Räume auf der Ostseite zurückgebaut werden. Die WC-Anlage wurde erneuert und um eine separate Behindertentoilette ergänzt.
Im Bereich der Außenanlagen wurde die Pergola abgerissen und erneuert und eine neue Außenbeleuchtung hergestellt. Der nördliche Mitarbeiterzugang wurde mit einer Rampe versehen.
(Iren Böhme, Referat Bauplanung)
Projektdaten:
Planung und Ausführung Hochbau LPH 2-8 | seit September 2010
BraunBusse Architekten, Berlin
Planung und Ausführung Haustechnik LPH 2-8 | seit September 2010
ECOPLAN, Berlin
weitere Projektbeteiligte:
Fachplanung Brandschutz: TPG, Berlin
Projektsteuerung
Technische Abteilung, Referate Bauplanung / Baudurchführung / TGA und Betriebstechnik
Termine
Baubeginn | Herbst 2012
Fertigstellung | Sommer 2015
